Beskrivning
Tekniska specifikationer
- Stor (114 liter) elektrisk multifunktionsugn med två varmluftsfläktar
- Energisparpanel (ESP) för att skapa en mindre (49 liter) multifunktionsugn till höger
- Programmerbar ugn 7 Ugnsfunktioner (utan/med E.S.P.)
- Integrerad grill med utdragbar ugnsform med galler
- Ugnsplåtar/hyllor: 2 ugnsplåtar, 2 fullbreddshyllor, 3 hyllor för mindre ugn Hyllplan 4
- Emaljerad interiör som är lätt att rengöra
- Gasolhäll med 5 brännare, inklusive en 4 kW multiring brännare. Totalt är gashällen på 11,4 kW
- Grytstöd i gjutjärn
- Wokhållare i gjutjärn och ett teppanyakistekbord ingår
- Tvåhandständning
- Fullbredd förvaringslåda i botten.
- Energiklass A
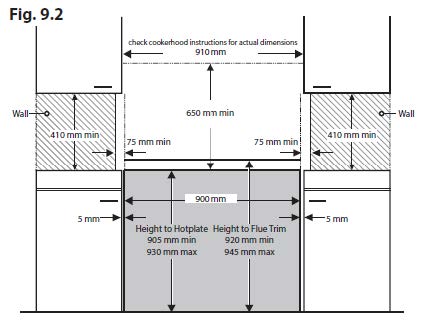
Mått och vikt:
- Bredd: 900 m
- Djup: 608 mm utan handtag, 669 mm inkl handtag
- Höjd: minimum: 905 mm, maximum 930 mm
- Vikt: 129 kg














